Горелка газовая Emma 0.25 в Казани

Цена с НДС:
118 000 рублей
Цена с НДС на горелка газовая Emma 0.25 с доставкой в
от 118 000 рублей
Условия в
В наличии на складе
Доставка ТК по России и Казахстану
Безналичный расчет
Есть в наличии
Горелка газовая Emma
Газовая горелка Emma
Газовая горелка Emma - блок управления
Блок управления газовой горелки Emma
Рампа газовая горелки Emma
Газовая рампа горелки Emma
Горелка газовая Emma
Газовая горелка Emma - блок управления
Рампа газовая горелки Emma
Технические
характеристики
Описание
товара
Дополнительное
оборудование

Технические характеристики горелки газовой Emma 0.25

Бренд Emma
Топливо Газ
Тип Блочная газовая
Номинальная тепловая мощность 0.25 МВт
Число ступеней регулирования Одна ступень
Напряжение электрической сети 380 В
Срок службы 10 лет
Вид Горелка водогрейного котла, Горелка парового котла
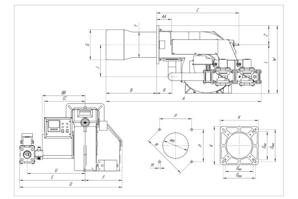
Газовая горелка Emma чертеж
Чертеж газовой горелки Emma

Газовая горелка Emma 0.25 в Казани

Российская моноблочная газовая горелка Emma 0.25 применяется на теплогенераторах, водогрейных (жаротрубных и водотрубных) и паровых котлах с камерой сгорания под разряжением, и с аэродинамическим сопротивлением, как отечественного, так и импортного производства.

Особенности моноблочной газовой горелки отечественного производства Emma 0.25

  • Данная модель представлена тепловой мощностью до 4.5 МВт.
  • Взаимозаменяемость с отечественными и импортными блочными горелками (по функциональным, техническим характеристикам, типоразмерному ряду).
  • Адаптирована для применения на открытом воздухе (температура окружающей среды от -20 до +55).
  • Заводские настройки и простота конструкции позволяют сократить пуско-наладочные работы и привлечение высококвалифицированного персонала.
  • Плавное раздельное регулирование подачи газа и воздуха на всех горелках.
  • Контроль герметичности газовой арматуры на всех горелках.
  • Режим ручного управления мощностью.
  • Возможность подключения датчика кислорода.
  • Высокая степень помехозащиты.

Комплектация

  • Блок газовых клапанов (для позиционного или плавного регулирования) производства Термобрест.
  • Датчики-реле давления воздуха, газа.
  • Шкаф управления горелкой. Позиционное или плавное регулирование. Позволяет обеспечить полный алгоритм работы котельной установки, без дополнительных устройств (регуляторов, контроллеров, измерителей температуры).
  • Электропривод воздушной заслонки.
  • Контроля пламени горелки.
  • Запальный трансформатор для розжига.

Полный комплект для монтажа на тепловой установке.

Купить газовую горелку Emma 0.25

Для того чтобы купить отечественную газовую горелку Emma 0.25 в Казани, вы можете оформить заявку в отделе сбыта по телефону 8-800-700-06-43, либо оформить заявку онлайн. Инженеры-консультанты помогут выбрать модели вспомогательного оборудования для выбранных вами моделей и рассчитают стоимость доставки до вашего региона и населенного пункта. Транспортирование может осуществляться транспортными компаниями, автомобильным транспортом, железнодорожным и речным видами транспорта.

Дополнительное оборудование горелки газовой Emma 0.25

Паровой газовый котел 300 кг
Паровой котел 0.3 т / 300 кг / 0,7 кгс/cм² / 0,07 МПа / 115 °C - газ
540000 руб. с НДС
  • Стабильная выработка сухого пара независимо от нагрузки котла
  • Высокая надежность конструкции благодаря отсутствию температурных расширений
  • Возможность подпитки котла даже холодной водой +5 ºС
  • Не требует регистрации в Ростехнадзоре
Паровой газовый котел 300 кг
Паровой котел 0.3 т / 300 кг / 1,7 кгс/cм² / 0,17 МПа / 130 °C - газ
661000 руб. с НДС
  • Стабильная выработка сухого пара независимо от нагрузки котла
  • Высокая надежность конструкции благодаря отсутствию температурных расширений
  • Возможность подпитки котла даже холодной водой +5 ºС
Паровой газовый котел 300 кг
Паровой котел 0.3 т / 300 кг / 9 кгс/cм² / 0,9 МПа / 170 °C - газ
714000 руб. с НДС
  • Стабильная выработка сухого пара независимо от нагрузки котла
  • Высокая надежность конструкции благодаря отсутствию температурных расширений
  • Возможность подпитки котла даже холодной водой +5 ºС
Газовый котел 0.2 МВт
Котел 0.2 МВт газовый
372000 руб. с НДС

Автоматическое регулирование температурных режимов

Надежная гладкотрубная конструкция исключает деформации и разрывы швов

Встроенная система взрывобезопасности

Низкие требования к качеству питательной воды

Модель работает с отечественными горелками EMMA, ILKA, РГМГ, ГБЛ, ГМ, ГМГ, АПНД, ГГ и импортными горелками UNIGAS, BALTUR, ECOSTAR, FBR S.R.L.

Наш завод также производит модели котлов для работы на российских горелках БИГ, ГМГ, РМГ, ГГ, РГМГ.

Газовый котел 0.23 МВт
Котел 0.23 МВт газовый
377000 руб. с НДС

Автоматическое регулирование температурных режимов

Надежная гладкотрубная конструкция исключает деформации и разрывы швов

Встроенная система взрывобезопасности

Низкие требования к качеству питательной воды

Модель работает с отечественными горелками EMMA, ILKA, РГМГ, ГБЛ, ГМ, ГМГ, АПНД, ГГ и импортными горелками UNIGAS, BALTUR, ECOSTAR, FBR S.R.L.

Наш завод также производит модели котлов для работы на российских горелках БИГ, ГМГ, РМГ, ГГ, РГМГ.

Отзывы о продукции

Другая похожая продукция